Grays Creek Development - For Sale, Gray's Creek, TN

Address

Walnut Grove Rd & N Houston Levee Rd, Gray's Creek, TN 38018
Walnut Grove Rd & N Houston Levee Rd, Gray's Creek, TN 38018

Description

A rare hard corner at a signalized intersection perfect for a gas station & convenience store or pharmacy, with adjacent retail and restaurant sites. Significant residential growth is occurring in this area. Dozens of multi-million dollar homes nearby. Briarcrest School is just south of the intersection and has an enrollment of 1,750 students.

Price - For Sale

Call for pricing.

Size

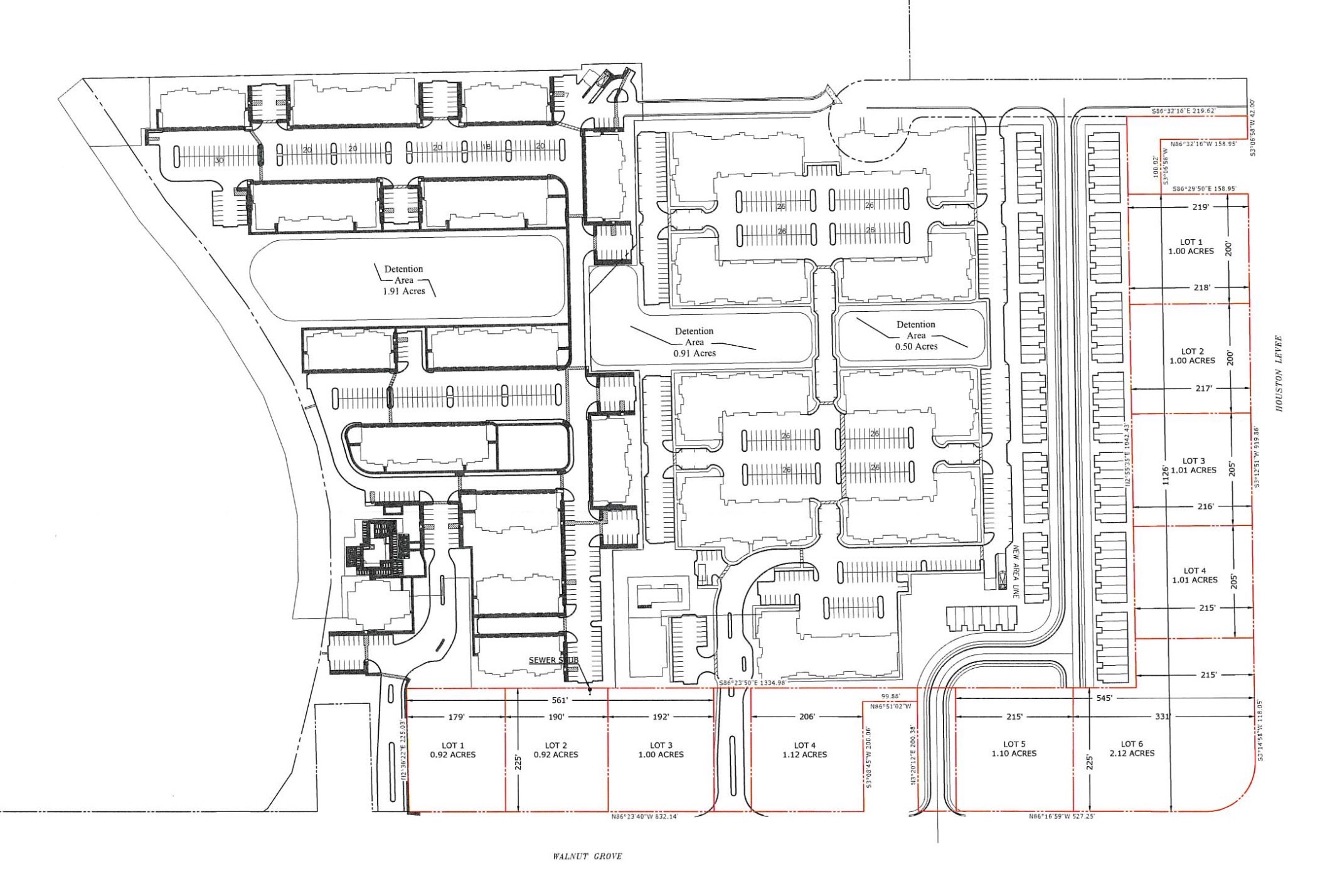
Approximately 12 ac of outparcels in total, with 5 outparcels on Houston Levee, and 5 on Walnut Grove, including the hard corner, ranging in size from 1 to 2+ acres. The depth ranges from 215 to 225 feet. See the attached conceptual layout of these outparcels.

Zoning

CMU-3, Retail/Highway Commercial

Property Highlights

Location Highlights

The Northwest corner of Houston Levee & Walnut Grove Rd, part of the 101 acre Grays Creek Development, adjacent to the existing 310 unit Grays Greek Apartments and the proposed 300 unit Levee Apartments. The outparcels will be located in front of the apartments and the proposed planned 100 unit Levee Reserve Townhomes.

Request More Info

Thank you! Your submission has been received!
Oops! Something went wrong while submitting the form.
Demographics
3 Miles
5 Miles
10 Miles
Population
28,741
101,232
413,701
Avg HH Income
$145,472
$132,645
$108,469
Households
10,475
38,102
150,248
Traffic Counts
Walnut Grove West of Houston Levee
17,833
Houston Levee North of Walnut Grove
17,432

Other Images

No items found.
Charlie Oates
5865 Ridgeway Center Parkway Suite 300 Memphis TN 38120
For Information 901-763-2050